Selamat datang di
Tavisha Alamanda
Perumahan Subsidi Dengan Desain Cantik di Banteran Sumbang
Tavisha Alamanda
Tavisha Alamanda Banteran new launching perumahan subsidi ke 3 dari perumahan Tavisha berlokasi di Banteran Sumbang

Kenanapa Memilih Tavisha Alamanda
Fasilitas Cluster
Terdapat fasilitas cluster seperti mushola, taman dll.
Keamanan 24 Jam
Terdapat security keamanan 24 jam di depan cluster
Area Hijau
Terdapat area hijau seperti taman, pohon di Pintu utama dan pinggir jalan
Legalitas SHM
Legalitas rumah yang Anda beli adalah sepenuhnya aman, dengan status yang aman berupa sertifikat Hak Milik (SHM) yang bersih dan jelas.
One Gate System
Pintu masuk gerbang satu untuk keluar dan masuk perumahan
Developer Terpercaya
Di develop oleh pengembang berpengalaman PT Griya Utama Sejahtera yang sudah menjalankan berbagai projek seperti Griya Tavisha, Green Tavisha
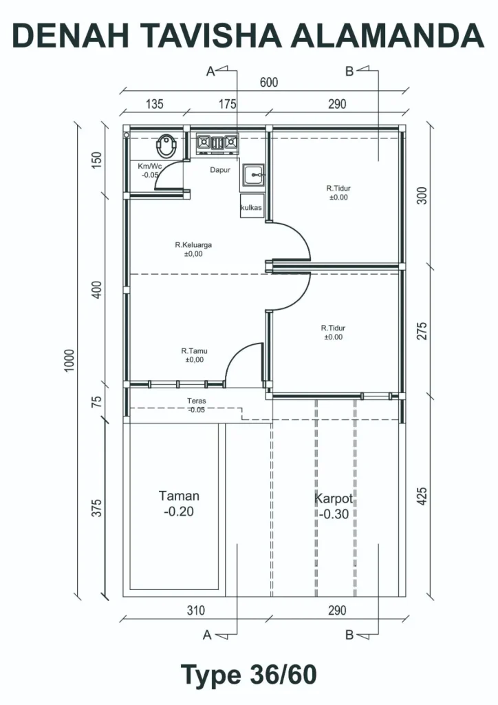
Type Unit & Siteplan
Type unit yang tersedia adalah type 36/60, dengan 2 kamar tidur, 1 kamar mandi


Spesifikasi Rumah
- Marketing Gallery
Jl. Raya Nur Jasin, Desa Banteran, Kec Sumbang, Kab Banyumas
085229634748